Skip to content
St. Dunstan's Episcopal Church

St. Dunstan's Episcopal Church

Search
  • Visiting?
    • Subscribe to Weekly E-News
    • Getting Here
    • Statement of Welcome
    • Our Staff and Ordained Leadership
    • Your First Time at In-Person Worship
    • Visiting: I’m not churchy!
    • Visiting: From a non-Episcopal church…
    • Visiting: From another Episcopal church…
    • A Brief History
    • Who We Are & What Members Say
    • What do Episcopalians believe?
    • Does it matter that I’m not Episcopalian?
    • Who was St. Dunstan?
    • The Larger Church
    • “This is my Body Broken” Painting
  • Worship
    • Weddings
    • Accessibility, sensory needs, and your comfort
    • Children in Church
    • Tips for Adults Worshipping with Children
    • The Creed
    • Eucharist
    • Incense & the Sacred
    • What’s St. Dunstan’s Zoom worship like?
    • The Stations of the Cross
    • Advent Doors 2020
  • Fellowship & Learning
    • Summer Evening Drama Camp
    • Why pronouns?
    • Practicing Faith
      • Discipleship Practice: Welcoming
      • Discipleship Practices: Abiding
      • Discipleship Practices: Making
      • Discipleship Practices: Proclaiming
      • Discipleship Practices: Reconciling
      • Discipleship Practices: Turning
      • Discipleship Practices: Wondering
    • Sharing Meals
    • Mapping Repentance: A Lenten Series (2021)
    • Rev. Miranda’s Sabbatical Report
  • Youth Program
    • What does our usual Friday night youth group look like?
    • Group Norms & Values
    • Photo Gallery
    • Youth E-News
    • Events Calendar
    • Event Registration
  • Giving
    • Give Online
    • The Place-Keeping Fund
    • Parish Center Rental
    • Capital Campaign, 2018
      • Open Door Project Update – January 2022
      • Open Door Project – Spring 2021 Update
      • How We Got Here
      • Capital campaign overview, February 2017
      • Capital Campaign Possibilities, January 2018
      • Open Door Project Renovation Timeline
      • The Open Door Project: Fundraising Phase
      • Wondering Conversations Report
  • Our Grounds
    • A map of the grounds
    • The Arboretum
    • DRAFT Land Acknowledgment, August 2022
    • The History of this Land
    • Creation Care Mission Statement
    • Green Challenge Badge, Summer 2019
    • Our Labyrinth
    • Permaculture
  • Outreach
    • Outreach Suggestion Form
    • Outreach Mission Statement
    • About WayForward Resources

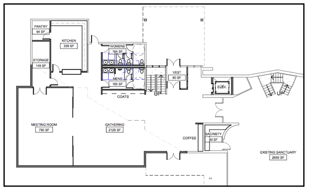
Screen Shot 2017-12-01 at 8.06.15 AM

December 1, 2017 603 × 374 Capital Campaign Possibilities, January 2018

Draft floor plan of main level, with Expansion approach. The fine dotted line is the current back wall of the building.

Previous Image
Next Image

6205 University Ave., Madison WI

  • Send Us a Message
  • Find Us on Facebook

Where We Are

St. Dunstan's Episcopal Church
6205 University Ave.
Madison, WI 53705
Phone: 608-238-2781
Sunday Worship at 8am & 10am

Contact Us

  • Send Us a Message
  • Find Us on Facebook
Donate Online

Recent Posts

  • Sermon, April 26
  • Sermon, April 19
  • Easter homily
  • Easter Vigil homily
  • Good Friday homily

Categories

Older posts

Meta

  • Log in
  • Entries feed
  • Comments feed
  • WordPress.org
Proudly powered by WordPress
St. Dunstan's Episcopal Church